-
乌什吐尔和夏合吐尔遗址 编辑
乌什吐尔和夏合吐尔遗址,位于新疆维吾尔自治区阿克苏地区库车县玉奇吾斯塘乡西5千米处,地处库车县与新和县交界处的渭干河东岸台地上,是晋至宋时期遗址。
乌什吐尔和夏合吐尔遗址,分布于渭干河河谷两岸。河东岸为乌什吐尔遗址,河西岸为夏合吐尔遗址。20世纪初,先后有来自日本、德国、法国的“探险队”在此进行调查、测绘和盗掘,盗走大批佛像、壁画、丝织品和文书等文物。2019年5月~8月,中国国家博物馆牵头联合新疆文物考古研究所、阿克苏地区文旅局和塔里木大学历史与哲学学院等单位对乌什吐尔遗址进行了考古发掘。大量西域特征的遗物出土说明了唐时期该地区在中原和中亚文化交流中的桥梁纽带作用。乌什吐尔和夏合吐尔遗址的发掘,为龟兹地区佛寺遗址布局研究提供了新材料,不仅有助于完善新疆地区的考古学文化序列,深入探讨丝绸之路南北通道的形成,更有助于提高关于古代中央政权与西域政治、军事、交通、贸易等课题的认识深度,对力证新疆自古以来就是祖国不可分割的一部分具有重要意义。
2019年10月7日,乌什吐尔和夏合吐尔遗址被中华人民共和国国务院公布为第八批全国重点文物保护单位。
中文名:乌什吐尔和夏合吐尔遗址
地理位置:新疆维吾尔自治区阿克苏地区库车县玉奇吾斯塘乡西5千米处
所处时代:晋至宋
保护级别:第八批全国重点文物保护单位
编号:8-0161-1-161
批准单位:中华人民共和国国务院
清光绪三十二年(1906年)1月,德国考古学家格伦威德尔率领第三次探险队考察夏合吐尔遗址,并进行了部分发掘。先是发掘出一座佛堂,内有大立佛塑像及天王像,属于早期龟兹系。随后又对一处塔基和佛堂进行清理,发现有舍利盒、佛传壁画、塑像残块等遗物。同年,别列卓夫斯基兄弟(M.M.Berezowskys)也对夏合吐尔遗址进行了简单的测绘。
清光绪三十三年(1907年)4月17日至6月4日,法国学者伯希和率领考察队在夏合吐尔遗址(伯希和称之为都尔都尔阿库尔Durdur-Aqur遗址)进行大规模的系统的发掘。遗址出土大量佛教雕塑壁画、木雕以及文书等遗物。伯希和也认为此遗址是阿奢理贰伽蓝。伯希和推测此寺院可能创建于4世纪,兴盛于8世纪,衰败于12世纪。伯希和在世时没有发表这些考古材料,直到1967年和1982年,韩百诗(LouisHambis)、玛德琳哈拉德(MadeleineHallade)等人才根据伯希和当年留下来的日记和现藏于巴黎集美博物馆的遗物,先后整理出版了名为《库车》(Koutcha)两部书,列《伯希和探险团考古档案》的第3、4卷。整理者依据伯希和留下的笔记和照片大致对寺院的情况进行了描述,绘制了详尽的线图,并简单介绍寺院中出土的遗物。
清宣统元年(1909年)3月26日,日本大谷探险队的另一成员野村荣三郎也对夏合吐尔遗址和乌什吐尔遗址进行调查和发掘。他草绘了夏合吐尔遗址的平面图,并发现塑像残块、小木雕和文书残件等遗物。在乌什吐尔遗址,发掘了邻近石窟的一座佛塔。
民国十七年(1928年)9月初,黄文弼先生抵达库车考察库木吐喇石,同时也调查了夏合吐尔和乌什吐尔两处遗址。黄文弼称乌什吐尔为“色乃当城,为四方形,周边约420米”,并于遗址内采集到陶片若干。他还记载了对岸的夏合吐尔遗址。夏合吐尔遗址周长约380米,其内东西两侧各有佛塔一座。黄文弼认为此二处遗址为《大唐西域记》中记载的昭怙厘东西二伽蓝,并根据文献记载推测其年代为3世纪中叶~9世纪末。向达先生也认为渭干河口两岸的遗址为东西昭怙厘寺院。
1980年、1984年和1987年,晁华山教授先后三次调查了乌什吐尔和夏合吐尔遗址。绘制了乌什吐尔寺院的草图。
1985年,王炳华先生调查夏合吐尔和乌什吐尔两处遗址,并依据文书和文献记载,认为此处为唐代拓厥关遗址。
2001年9月,晁华山教授带领调查夏合吐尔遗址和乌什吐尔遗址,并进行了测绘和记录。
乌什吐尔遗址2019~2021年挖掘现场
地理环境
乌什吐尔遗址
夏合吐尔遗址
综述
夏合吐尔遗址主体大致呈方形,南北长约134米,东西宽约114米。遗址环绕高大墙垣,现仍残存墙垣四段,残高达3米左右,使用长方形土坯砖建筑。据伯希和的考古报告中的绘图,东、南、北三墙外筑有马面。墙垣之内,遗址的南部和西部皆为大面积空地。
1号中心庭院
夏合吐尔遗址
1号庭院,西侧有三座庭院,由南向北分别编号为2号、3号和4号庭院。另有建筑6座,由南向北依次编号为XH2、XH3、XH4、XH5、XH6和XH7。1号庭院西南方向为一方形建筑物XH2,边长为12米,门朝向1号庭院。
2号庭院
2号庭院,位于1号庭院西侧,XH2北部。此庭院没有封闭的围墙,其南、北、西三侧的墙垣也是与其他建筑共用。庭院中有一露天大塔XH3。伯希和称此处为主塔区,认为是整个寺院的中心;野村荣三郎在绘制遗址的草图时也把此塔绘于寺院群中间。佛塔XH3的塔基为方形边长约7米;塔身为圆柱形,覆钵顶。
2号庭院,西侧为建筑XH4,平面长方形,长约16米,宽约9米。门开于西北角,西向,其西壁,即正壁开七个佛龛。
3号庭院
3号庭院,位于2号庭院北侧,平面呈方形,边长约20米,门开向1号庭院。庭院西部为一排小室,编号为XH5。小室共有七间,最南部的小室包括前后两间。这些小室平面近方形,边长约2米,门道尚存。
4号庭院
经过3号庭院可到达4号庭院,其位于1号庭院的西北方向。庭院东南角为建筑XH6,平面为方形,边长约6米,四壁绘有较大的立佛像。中间为一方形台座,上面还铺有石灰,台座三面有栏杆,栏杆内侧装饰小坐佛像。4号庭院西北侧有朝向庭院的建筑若干,位于最西部的是一方形建筑XH7,边长约7.7米,建筑内沿四面墙壁有长条形台座。
建筑XH8
与1号庭院北部相邻有三组建筑群,呈东西向相连排列。建筑XH8位于1号庭院西北方向,西临4号庭院和建筑XH6,宽11米,由北部房屋与南部小庭院组成。房至北墙有一出入口,而小庭院围墙四周环绕一圈长条形平台。房屋与小庭院有门相通,位于墙中间,门两侧各有一扇窗户。位于1号庭院正北方向的是两座方形建筑,西与建筑XH8共用一墙。
5号庭院
5号庭院,位于1号庭院东北方向,平面亦为方形,宽约29.50米,墙垣残高3米,门南向并由此可进入1号庭院。此庭院废墟堆积层很厚,出土有织物、开元通宝、木简、绿釉瓷片以及拖鞋、扫帚等生活用品及杂物。在庭院的东、南、北三面依墙各建筑有小型房屋6~7间。房屋内被废墟填满,于0.3~0.5米深处发现有木头建筑和写本等遗物,伯希和据此推测原先房屋可能是双层建筑。此外,他在其中一座房屋顶部发现一片三合土铺面。在5号庭院北部有一处房间XH9,平面近方形,边长约7米,房屋中间也是设置有一方形台。
建筑XH10、11
1号庭院的东侧有一排长方形房间,但伯希和对此无详细记载。这排房间的中间有一通道可进入位于其东侧的一长方形大厅。此长方形大厅长近47米,宽约19米,内发现壁画残块若干块,但具体发现地点不清楚。大厅北侧为建筑物XH10,平面方形,边长约6米,中间为台座伯希和在此发现泥塑像残块。大厅东南侧为方形建筑XH11,墙垣较厚,宽约4.5米,进深约3米。此建筑伯希和没有描述,但有可能是格伦威德尔所发掘的地面寺院。
6号庭院
东北距主寺院群约80米处有另一庭院,编号为6号庭院。此寺院门道朝南,前面有一宽敞大道通向主寺院群东侧的大厅。6号庭院平面呈长方形,门朝南,外侧长45米,宽27米,里侧长31.5米,宽19米。露天大塔XH12位于庭院中间偏后,塔基为方形,边长约9米;塔身为圆柱形,覆钵顶。沿6号庭院院墙内侧建有长条形像台,上为佛、菩萨、天人魔众的圆雕塑像。由于此处发现有木柱头,所以伯希和认为靠近围墙处可能有屋顶。
乌什吐尔遗址
乌什吐尔遗址平面图
乌什吐尔遗址
佛寺建筑类别
根据建筑形制和建筑内发现的遗迹、遗物等方面的差别可把建筑分为五类:
第一类,这类建筑平面为方形,建筑内一般都发现有佛像雕塑和壁画等遗物。又可根据塑像安置位置和方式将这类建筑分为像台式、龛像式和塑像式。
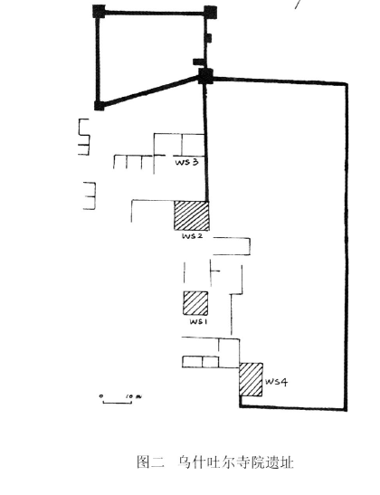
第二类,这类建筑的特点是方形平面,中心为一露天大塔,四周环绕有墙垣。夏合吐尔遗址有两座这类建筑,一座是位于寺院群西南侧的2号庭院,一座是位于寺院群东北面的6号庭院这两座建筑的佛塔形制类似,都是方形塔基,圆柱形塔身和覆钵顶。但两座建筑也有两处相异:第一是,塑像安置方式不同,2号庭院的塑像安置于XH3佛塔的塔基佛内,而6号庭院的塑像安置于院墙内侧的长条形像台上;第二是,塑像内容题材不同,2号庭院的塑像题材为佛像,而6号庭院的题材除佛像外,还有菩萨、天人等。乌什吐尔遗址的WS1佛塔和2号庭院中的XH3佛塔类似,也是在塔基立面安置佛像这类建筑主要是礼拜露天佛塔,属于塔院。
第三类,此类建筑的特点是一封闭形方形建筑,以一庭院为中心,四面环绕成排上下两层的方形小建筑内通常设有和生活起居有关的设施屋。这类建筑应该是僧侣生活起居之处。夏合吐尔遗址的5号庭院四周环绕有上下两层的小屋于此出土的大量生活用品说明,此处是生活区,应是僧房院。
第四类,此类建筑特点是平面方形,面积很小,仅可容纳一人坐卧。夏合吐尔遗址的3号庭院东侧XH5建筑为一排小室,每个小室的室内面积不大,仅可容纳一人,无像台、泥塑像等遗迹遗物。可以推断此类建筑可能是供僧侣坐禅用的禅室或称为禅房。于此处发现的木雕佛像等遗物,可能是僧侣坐禅时的观想之物。
第五类,此类建筑的特点是平面方形,面积很大,建筑内无雕塑等遗物。夏合吐尔遗址的XH2建筑门朝向中央的1号庭院,平面为方形,面积大于其他建筑,建筑内部无像台、雕塑等遗迹遗物。可以推测夏合吐尔遗址中的XH2建筑是讲经堂。
夏合吐尔遗址出土佛头像图
夏合吐尔遗址采集文物较丰富,2号庭院,西北侧的一个佛龛内残存有泥塑莲花座。伯希和于此处发现一块铜饰件,上面有锤碟的菩萨像;3号庭院,伯希和发现有小型的木雕坐佛像、弥勒像、燃灯佛本生故事木板、小木塔、木像龛等遗物;伯希和于建筑XH6中,发掘出大量婆罗迷文写本以及法卢文残片,因此把此处称为“藏经阁”。另外还发现有1枚“建中通宝”、9枚“大历元宝”和9枚“开元通宝”及小木雕像若干;5号庭院,伯希和于此处发现泥塑佛头像、五铢钱、木柱头等遗物;XH10、XH11建筑物内,格伦威德尔记载正壁中间残存大佛立像的脚部和半圆形覆莲台座,两侧为天王塑像;6号庭院,出土了汉文和婆罗谜文写本。伯希和在庭院旁的一个过道发掘并发现婆罗谜文经卷和有“上元三年”字样的汉文文书。
乌什吐尔遗址出土玉人残件
2019~2021年,乌什吐尔遗址遗址出土了陶片、动物骨骼、建筑废弃物、金戒指、钱币(包括五铢钱、大历元宝、光绪通宝、汗龟二体钱等),还有青铜小佛像、玻璃残件、玉石器等遗物,其中石膏佛足、青铜小佛像、骨骰、金戒指、玉人残件、五铢钱、汉龟二体钱等是较重要收获。
乌什吐尔和夏合吐尔遗址的平面布局及结构特点,为龟兹地区佛寺遗址布局研究提供了新材料,不仅有助于完善新疆地区的考古学文化序列,深入探讨丝绸之路南北通道的形成,更有助于提高关于古代中央政权与西域政治、军事、交通、贸易等课题的认识深度,对力证新疆自古以来就是祖国不可分割的一部分具有重要意义。
地理位置
乌什吐尔和夏合吐尔遗址位于新疆维吾尔自治区阿克苏地区库车县玉奇吾斯塘乡西5千米处,地处库车县与新和县交界处的渭干河东岸台地上。
玉奇吾斯塘乡人民政府
交通信息
自驾:自新疆维吾尔自治区阿克苏地区库车县人民政府开车前往乌什吐尔和夏合吐尔遗址,路程约22.6千米,用时约29分钟。
1、本站所有文本、信息、视频文件等,仅代表本站观点或作者本人观点,请网友谨慎参考使用。
2、本站信息均为作者提供和网友推荐收集整理而来,仅供学习和研究使用。
3、对任何由于使用本站内容而引起的诉讼、纠纷,本站不承担任何责任。
4、如有侵犯你版权的,请来信(邮箱:baike52199@gmail.com)指出,核实后,本站将立即删除。
下一篇 小央达克协海尔古城遗址
上一篇 库车大寺

















