-
赛图拉哨卡遗址 编辑
赛图拉哨卡遗址,位于新疆维吾尔自治区和田地区皮山县康克尔柯尔克孜民族乡色日科尔村西北8千米处,设卡于清光绪三年(1877年)。
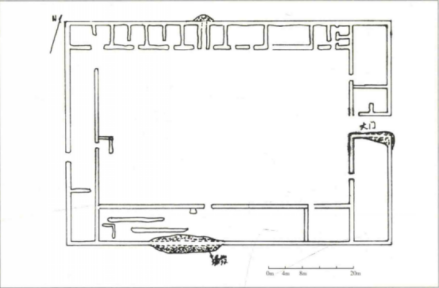
赛图拉,维语意思是殉教者,其名源于平台上的古墓。赛图拉哨卡是个大本营,主要负责800里喀喇昆仑的守防任务。赛图拉哨卡遗址是四合院式的建筑,有足球场一般大小,院墙保存较完整,营房已坍塌,地上残留着许多马头桩。整个营房所在地平坦开阔,东南角上有个不大却坚挺的小山包,顶上建有一座六角柱形的哨楼,可以看到周遭的地形路线。赛图拉哨卡遗址地理位置重要,在研究和田地区近现代的边境史以及军事建筑等方面都具有较高的价值。
2019年10月,赛图拉哨卡遗址被中华人民共和国国务院公布为第八批全国重点文物保护单位。
中文名:赛图拉哨卡遗址
地理位置:新疆维吾尔自治区和田地区皮山县康克尔柯尔克孜民族乡色日科尔村西北8千米处
所处时代:1877~1962年
保护级别:第八批全国重点文物保护单位
编号:8-0747-5-231
批准单位:中华人民共和国国务院
民国十七年(1928年),设立了赛图拉边防局,不久又成立了边卡队,人数增至200人。
民国时期,盛世才任新疆维吾尔自治区主席兼边防督办期间,民国二十五年(1936年),成立了边务处,在和田设立了边卡大队,守防赛图拉防区。
1950年3月,中国人民解放军第五师第十团一个加强连进驻赛图拉。
2006年7月,和田地区文物局、和田地区旅游局联合对赛图拉哨卡进行调查。
2009年6月,和田地区第三次全国文物普查队复查。
赛图拉哨卡遗址位置图
赛图拉哨卡遗址 营房
营房平面图
哨楼
赛图拉哨卡遗址
赛图拉哨卡遗址哨楼平面呈六角形,建在两河交汇处的一座高约10米的独立的小山顶上,用土坯砌筑,边长约2米,残高2.2米,墙厚70~80厘米。门朝北,宽90厘米。哨楼共有6个小的射击口和5个望口。哨楼西北山坡上有两处古时的战壕。
赛图拉哨卡遗址遗址碑
地理位置
赛图拉哨卡遗址位于新疆维吾尔自治区和田地区皮山县康克尔柯尔克孜民族乡色日科尔村西北8千米处。
康克尔柯尔克孜族乡
交通信息
自驾:自新疆维吾尔自治区和田地区皮山县赛图拉镇人民政府开车前往赛图拉哨卡遗址,路程约15千米,用时约25分钟。
1、本站所有文本、信息、视频文件等,仅代表本站观点或作者本人观点,请网友谨慎参考使用。
2、本站信息均为作者提供和网友推荐收集整理而来,仅供学习和研究使用。
3、对任何由于使用本站内容而引起的诉讼、纠纷,本站不承担任何责任。
4、如有侵犯你版权的,请来信(邮箱:baike52199@gmail.com)指出,核实后,本站将立即删除。

















