-
北马玉皇庙 编辑
北马玉皇庙,位于山西省晋城市陵川县附城镇北马村,占地面积约859平方米,是金朝、清朝时期的古建筑遗址。
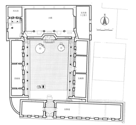
北马玉皇庙坐北朝南,一进院落,占地面积约859平方米。创建年代不可考,现存正殿明代曾经维修,但基本保存金代建筑原貌。中轴线上建有山门(改制)、正殿,两侧为廊房、耳殿,东耳殿被改制。山门舞楼为附建式,20世纪60年代拆除舞楼并重建南楼,增建广播塔。正殿石砌台基,平面呈长方形,面阔五间,进深三间,单檐悬山顶。北马玉皇庙因其始建木构设计手法独特而具有突出的科学价值,尤其是大殿所采用的单抄三下昂七铺作斗棋更是现存木结构中的特有实例。该建筑之后代历史演变线索较清晰,且近代人为扰动痕迹尚可确认,可以就此建立各类建筑工艺的历史参照系,有利于结合周边地区早期古建筑遗存和演变总结出陵川乃至晋东南地区建筑工艺、结构设计特点及其交流与传布。
2013年3月5日,北马玉皇庙被中华人民共和国国务院公布为第七批全国重点文物保护单位。
中文名:北马玉皇庙
地理位置:山西省晋城市陵川县附城镇北马村
所处时代:金、清代
占地面积:约 859 m²
保护级别:第七批全国重点文物保护单位
编号:7-0797-5-095
批准单位:中华人民共和国国务院
解放后,北马玉皇庙曾作为大队部。
20世纪60年代,拆除舞楼。
北马玉皇庙
山门舞楼为附建式,20世纪60年代拆除舞楼并重建南楼,增建广播塔;东西两庑变化不大;北面为大殿带两侧耳楼,20世纪60年代大殿改造为会堂,东耳楼一度改建成主席台,殿内神像壁画、殿外角兽等诸般文物遗存遭到破坏,仅留有微弱痕迹,其后文革期间复改为仓库,砌筑大殿南墙。
正殿
北马玉皇庙
北马玉皇庙正殿石砌台基,平面呈长方形,面阔五间,进深三间,单檐悬山顶。由于解放后曾作为大队部,建筑前檐被封堵。前檐柱头施七铺作,昂形耍头,单抄三下昂,无补间,昂全部为真昂,挑斡于六椽栿下皮。梁架结构为六椽栿通达前后檐用两柱,檐柱收分明显。六椽栿前后置于柱头铺作之上,上置蜀柱托斗拱承托平梁,平梁之上蜀柱居中,合沓作驼峰状。蜀柱之上座栌斗、丁华抹颏拱、替木承托平梁,叉手捧戗于脊槫下皮两侧。六椽栿之上,平梁之下两侧施剳牵,剳牵一端由座于六椽栿上的栌斗承托,一端插于承托平梁的蜀柱之中。
碑刻,现已发现八通;万历癸已重修三门舞楼并行廊铭;乾隆五十九年重修仁里馆东西厢廊阶楹并两偏殿、申明、旌善二亭捐输布施碑;乾隆五十九年重刻万历癸已北马村各庙地亩;道光二十三年仁里社重修水池碑序;民国四年重修水池碑记;墓碑残片;仆碑二通。
题记
题记位于南配楼上层脊檩:“公元一九六五年五月一日北马全体群众改修楼房八间匠工本村由南戏楼九间改修”。
北马玉皇庙
地理位置
北马玉皇庙位于山西省晋城市陵川县附城镇北马村。
附城镇北马村退役军人服务站
交通信息
自驾:自山西省晋城市陵川县人民政府开车前往北马玉皇庙,路程约21.2千米,用时约33分钟。
1、本站所有文本、信息、视频文件等,仅代表本站观点或作者本人观点,请网友谨慎参考使用。
2、本站信息均为作者提供和网友推荐收集整理而来,仅供学习和研究使用。
3、对任何由于使用本站内容而引起的诉讼、纠纷,本站不承担任何责任。
4、如有侵犯你版权的,请来信(邮箱:baike52199@gmail.com)指出,核实后,本站将立即删除。

















