-
浑源文庙 编辑
浑源文庙,又名浑源州文庙,位于山西省大同市浑源县永安镇永安西街路北,占地面积17400平方米,始建于辽,历代均有增葺 。
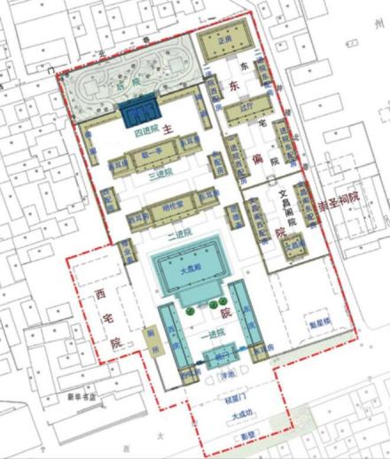
浑源文庙坐北向南,沿中轴线自南至北依次是大成坊、泮池和泮桥、戟门、大成殿、明伦堂、敬一亭、尊经阁。浑源文庙格局完整,规模宏大,大成殿保留有金元时期的构造特征,具有较高的价值 。浑源文庙是祭祀孔子的礼制性建筑群,也是“庙学合一”制度的重要载体 。
2013年3月5日,浑源文庙被中华人民共和国国务院公布为第七批全国重点文物保护单位 。
中文名:浑源文庙
地理位置:山西省大同市浑源县永安镇永安西街路北
所处时代:明至清
占地面积:17400 m²
保护级别:第七批全国重点文物保护单位
编号:7-0876-3-174
批准单位:中华人民共和国国务院
管理机构:浑源文庙文物管理所
《浑源州志》学宫图
大同解放后,浑源文庙被中小学占用。
中华人民共和国成立后,浑源文庙成为浑源县的教学单位驻地,先后叫浑源中学、完小、工读中学、“五七”中学、浑源二中。
2008年冬,浑源文庙划归浑源县文物局管理,学校整体搬迁。
2009年3月,成立浑源文庙文物管理所,实施了戟门、大成殿、东西庑的保护修缮工程以及明伦堂、敬一亭等主院损毁建筑的修复工程。
泮池
2015年,浑源文庙东偏院(东宅院和文昌阁院)修复工程已基本完成 。
2023年3月16日,浑源州文庙加入中国孔庙保护协会 。
浑源文庙布局图
戟门
戟门
大成殿
大成殿
尊经阁
尊经阁
东西庑
东西庑都是面阔七间,进深四椽,双坡硬山顶 。
壁画
大成殿内外栱眼壁上,绘有草龙,大部分保存完好,采用墨线勾画,总面积约80平方米 。
油饰彩画
戟门檐檩、额枋上留有部分彩画,总面积约22平方米。
大成殿梁架、斗拱保留部分旋子彩画,局部图案清晰,总面积约34平方米。
东西庑檐檩、额枋上留有部分彩画,总面积约15平方米。
尊经阁檐檩、额枋上留有部分彩画,总面积约19平方米 。
石碑
浑源文庙内尊经阁东侧,有清代礼部颁文卧碑1通,砂岩质,长2.5米,宽1.2米,厚0.25米 。
相关人物
据元至大三年(1310年)碑刻《神川先进登科记》统计,金代浑源进士及第者二十二人。金代第一个状元刘撝,儿子进士、孙子进士,曾孙、玄孙还是进士,一门之中九个进士 。
活动建设
历史上每年举办乡射、乡饮以及秋丁日在庙内祭孔活动 。
祭孔大典
2023年1月31日,大同市10多名武学爱好者应邀齐聚浑源文庙,表演傅山拳、咏春拳、剑术、枪术、形意拳、陈式56拳等 。
历史价值
1.明清时期已有文庙1560余座,现存文庙仅300余座,浑源文庙作为保存完整的明代早期文庙建筑遗构,具有较高的历史价值。
2.浑源文庙的建造规制,沿袭历代皇帝“州学皆立孔子庙”的诏修定例,自创建以后,屡有修筑,体现出古人对儒家思想和学说的崇奉,成为儒学发展的见证 。
艺术价值
1.浑源文庙内建筑众多,形制各异,在建筑组合上具有明晰的序列节奏,主从分明、层次井然,形成了流畅有序的建筑布局,具有强烈的建筑布局美。
2.大成殿后檐砖墙刻有“忠、孝、节、义”四个大字以及月台下的二龙戏珠丹陛石,雕刻线条流畅、形象逼真,具有较高的艺术价值 。
科学价值
浑源文庙大成殿木构架用材硕大,为扩大殿内空间,采用了减柱造的设计手法,明间、次间各施两组补间斗拱,各拱均为三瓣卷杀,体现了古人建筑构造技艺,具有较高的科学研究价值 。
社会文化价值
1.浑源文庙的祭祀文化是当地传统文化的组成部分,在民众心中有着深厚的情感。浑源文庙已成为当地重要的传统文化宣传展示场所。
2.浑源文庙通过举办传统文化活动,对公众起到丰富历史知识、提高文化素养的作用,发挥文化教育功能 。
2004年6月10日,浑源文庙被山西省人民政府公布为省级重点文物保护单位 。
2013年3月5日,浑源文庙被中华人民共和国国务院公布为第七批全国重点文物保护单位 。
省级重点文物保护单位
2019年8月10日,山西省文物局公布浑源文庙的保护范围及建设控制地带 。
保护范围 | 以现有围墙为界。 |
|---|---|
建设控制地带 | 东至钟楼北巷东侧,南、西、北各向外延伸50米 。 |
2022年5月13日,山西省人民政府公布浑源文庙等二十六处全国重点文物保护单位保护规划 。
地理位置
浑源文庙位于山西省大同市浑源县永安镇永安西街路北。
浑源文庙
交通信息
浑源县内乘坐浑源1路、浑源3路到沙河桥站,步行230米。
1、本站所有文本、信息、视频文件等,仅代表本站观点或作者本人观点,请网友谨慎参考使用。
2、本站信息均为作者提供和网友推荐收集整理而来,仅供学习和研究使用。
3、对任何由于使用本站内容而引起的诉讼、纠纷,本站不承担任何责任。
4、如有侵犯你版权的,请来信(邮箱:baike52199@gmail.com)指出,核实后,本站将立即删除。

















