-
佑顺寺 编辑
佑顺寺,俗称“喇嘛庙”,始建于清朝康熙三十七年(1698年),位于辽宁省朝阳市新华路东段北侧,地理坐标为:东经120°27′21″,北纬41°34′42″。
佑顺寺总占地面积约1.7万平方米,坐北朝南,呈官式建筑布局及做法。建筑群主要包括天王殿、藏经阁、大雄宝殿、七间殿等。寺院气势如虹,屋顶形式包括卷棚顶、硬山顶、歇山顶等,建筑结构严谨、阶直柱挺,装饰古朴典雅。佑顺寺是研究辽宁地区同时代古建筑的典型实物标本和重要实物依据。
2006年5月25日,佑顺寺被中华人民共和国国务院公布为第六批全国重点文物保护单位。
中文名:佑顺寺
外文名:You shun Temple
地理位置:辽宁省朝阳市新华路东段北侧
气候类型:北温带大陆性季风气候
占地面积:16975平方米
保护级别:第六批国家重点文物保护单位
批准单位:中华人民共和国国务院
编号:Ⅲ-203
清康熙四十六年(1707年),佑顺寺落成,竣工后,康熙帝赐名“佑顺寺”,并赐檀香佛像一尊。
乾隆十八年(1783年),皇帝去盛京(今沈阳市)谒陵驻跸于此,并钦赐“真如妙觉”匾额,悬于寺院大殿。
伪满时期,寺院开始衰败,寺内喇嘛相继离去,原钟鼓楼和白塔被毁。后佑顺寺改宗为汉传佛教,
1973年,佑顺寺作为朝阳市市博物馆对外开放。
2007年,朝阳市人民政府进行佑顺寺改造。
佑顺寺
结构
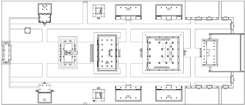
佑顺寺总占地面积约1.7万平方米,坐北朝南,呈官式建筑布局及做法。建筑群主要包括天王殿、藏经阁、大雄宝殿、七间殿等。寺院气势如虹,屋顶形式包括卷棚顶、硬山顶、歇山顶等,建筑结构严谨、阶直柱挺,装饰古朴典雅。建筑布局和造型上,为纯汉式寺庙建筑,严格按照伽蓝七堂的传统布局方式呈现:从广场之前的牌坊延展出由南而北的中轴线,连接了牌坊、山门、天王殿、藏经阁、大雄宝殿、更衣殿和七间殿,其他建筑形制对称而布,由此形成序列。其中重要殿堂设天花藻井,包括殿内梁枋斗栱等构件,其上皆施以彩画雕饰。
佑顺寺总平面图
特点
佑顺寺自康熙时期初建,后历经乾隆、嘉庆至光绪、民国几个时期的增建和维修,整个寺院在建筑风格和细部特征中呈现出多个时期并存的形态。从佑顺寺严整的寺院布局和跌宕起伏的气势氛围营造中,可明显辨别出官式建筑的特点,感受到的不仅是宗教的神秘和严肃,之间更夹杂着被官制统治和礼制束缚的压抑。从佑顺寺中即可看出清朝政治对于藏传佛教的侵入程度、对寺庙建造的影响力度,及其对该地民众实施思想控制乃至精神统治的方法与手段。
佑顺寺
综述
佑顺寺的最前方为四柱三楼式牌坊,前檐下悬挂楷书“佑顺”云龙纹陡匾,牌坊立于现为市民活动广场的佑顺寺广场之前。庑殿顶的山门是围合寺院空间序列中轴线的展开点,门前立辽至元代石狮一对,山门面阔五开间,中间三间辟拱券门,内奉哼哈二将。天王殿位于中轴线上的山门之后,为庑殿顶面阔五开间,进深三开间建筑,设牖窗、拱券门,前后门券上方各置一方刻有满、蒙、藏、汉四体文字石匾,殿内奉有四大天王和阿弥陀佛。天王殿与山门之间东西两侧分别为宗喀巴殿(戏楼)与伽蓝殿(关帝庙),两殿形式基本相同,均为面阔三间的卷棚歇山顶建筑。重檐歇山顶的藏经阁紧邻着天王殿,面阔七间,进深四间,为全寺重要性仅次于大殿的建筑。藏经阁两旁是重檐歇山顶钟鼓楼。大殿是建筑群中体量最大的建筑,处于中轴线中间部分,歇山顶,面阔进深均为五间,以其恢弘清幽的气势统领整个寺院。药师殿和弥陀殿作为东西配殿位于大殿前两侧,形制均为面阔五间的硬山建筑。大殿两侧为观音殿和地藏殿,均为面阔三间的庑殿顶建筑。中轴线上,大殿之后为八檩卷棚的更衣殿,面阔五间。建筑群的序列高潮结束于轴线上面阔七间的硬山建筑——七间殿。除此之外,寺院四隅还有民舍式样的环房。
佑顺寺
大雄宝殿
佑顺寺大殿面阔及进深均为五间,建在1.3米高带有雕龙御路的台基上,平面为长20.2米、宽20.4米近似正方形、通高21米。单檐歇山顶的布瓦屋面,正脊中央置有2米多的铜鎏金宝顶,为该寺的制高点,戗脊上立有7只走兽。建筑南墙明间、次间开槅门,梢间设槛窗,殿顶设井口天花,八角覆斗式藻井。殿内有34根木质圆柱,2根石材方柱,殿外立有四根圆擎檐柱,共计40根柱。地面由方砖错接铺设。其内部空间是藏传佛教在漠南蒙古的成熟期形成的佛殿——经堂布局方式之一的殿堂结合式。越过因斗栱出檐较大形成的前廊,从正门进入殿内后使用改变纵向柱距和移柱造的方式形成了较为宽阔的空间辟为经堂,北部柱距较为密集,于其中部奉主佛像,东西两侧沿墙置十八罗汉像。大殿的礼佛交通组织沿用了停滞式,即从正门进入大殿后在佛像前进行叩拜再从殿门出来即可。殿身外墙上嵌有关于藏传佛教内容的石雕。
佑顺寺
佑顺寺
2006年5月25日,佑顺寺被中华人民共和国国务院公布为第六批全国重点文物保护单位。
据史料记载,鼎盛时期的佑顺寺曾住有喇嘛300多名,藏经阁藏有珍贵经卷400多部。每年农历六月十五佑顺寺庙会,既要在寺内戏楼唱戏,又要在山门殿前的跳鬼台上跳布扎,在辽宁省诸寺庙中的规模最大。彼时庙市上的各地香客商贾云集,鼓乐震天,经声佛号,不绝于耳,为一时之盛。
门票
凭身份证领取免费门票。
开放时间
开放时间:09:00~16:00,每周一闭馆。
交通线路
乘坐朝阳10路,14路,15路,19路,3路,4路公交线路至佑顺寺站下车。
1、本站所有文本、信息、视频文件等,仅代表本站观点或作者本人观点,请网友谨慎参考使用。
2、本站信息均为作者提供和网友推荐收集整理而来,仅供学习和研究使用。
3、对任何由于使用本站内容而引起的诉讼、纠纷,本站不承担任何责任。
4、如有侵犯你版权的,请来信(邮箱:baike52199@gmail.com)指出,核实后,本站将立即删除。

















