-
连云港站 编辑
连云港站(Lianyungang Railway Station)位于中国江苏省连云港市,是中国铁路上海局集团有限公司的客运站,是中国“五纵五横”干线铁路网中陇海铁路与沿海铁路的交汇点,是中国“八横八纵”高速铁路网中沿海通道和陆桥通道的交汇点, 是连云港全国性综合交通枢纽的重要组成部分, 是江苏省大型铁路综合客运枢纽之一。
连云港站始建于1921年,原名新浦站。1925年7月投入运营。 1998年陇海铁路连云港市区段改线工程完工通车,陇海铁路改绕连云港市区外围,新浦站迁入现址。2004年1月1日,新浦站更名为连云港站,原连云港站更名为连云港东站(现为连云站)。 2015年3月20日,连云港站作为连盐铁路配套工程正式进行改造。 2018年12月26日,改建后的连云港站随青盐铁路通车正式投入运营。
截至2018年4月,连云港站站房建筑面积20120.6平方米。 截至2021年2月,连云港站站场规模为9台22线(远期预留沿海高速场2台6线);设计年客流量650万人次。
中文名:连云港站
外文名:Lianyungang Railway Station
车站代码:38531
投用日期:民国14年(1925年)
所属地区:中国江苏省连云港市
车站等级:一等站
主要线路:陇海铁路、青盐铁路、连镇高速铁路、徐连高速铁路
区域管理:中国铁路上海局集团有限公司
建筑面积:20120.6平方米(截至2018年4月)
站台规模:9台22线(截至2021年2月)
年客运量:1496.9 万人次(2023年)
年货运量:4127.8万吨(2013年)
车站地址:江苏省连云港市海州区人民东路4-1号
老窑站→原连云港站→原连云港东站→连云站
原连云港站(现为连云站)
民国24年(1935年)6月,老窑站开始营运, 车站站房为港口和车站的共用办公楼。
民国26年(1937年),老窑站更名为连云港站。
2004年1月1日,原连云港站更名为连云港东站,新浦站更名为连云港站。
2009年11月11日,中云站更名为连云港东站,原连云港东站再次更名为连云站并停办客运、行包业务,专一负责连云港港口货运业务,为二等货运站。
2019年12月30日,连云港城市动车(连云港市域列车)开通,连云站在原有站房东侧新建东站房,作为城市动车专用站房,重新开放办理客运业务。
新浦站→连云港站
1940年代的新浦站
民国10年(1921年),新浦站与陇海铁路邳州至大浦段同步开工建设。
民国14年7月(1925年7月),新浦站建成并开办客货业务。 新浦站原址位于连云港市原新浦区解放东路,位于盐河下游,因其南已有板浦,其北则有大浦,故取名新浦。新浦站开站时仅设有站线4股、工务段段管线2股、旅客站台1座及货物仓库1座和票房、站长室2所等。
1985年,经原济南铁路局研究通过并报原铁道部批准,陇海铁路海州站至原连云港站(现为连云站)段列入整体改造规划。其中,海州站至新浦站之间实行改线工程。铁路从海州站西向北方向改线,绕过连云港市原新浦区再转向东取直至连云港港口,原有路基和海州、新浦两站报废,选择两站中间位置新建车站及相配套的铁路货场、站前广场。
1988年,新浦站由三等站晋升为二等站。
1992年,新浦站拥有线路7股,其中到发线4股、货运线3股,设段管线及专用线各一条,旅客站台2座、货物站台1座、军用顶端站台1座、货物仓库6座等,站房面积1300平方米。
1998年8月,陇海铁路海州至新浦段铁路改线工程完工,连云港市原新浦区段陇海铁路线改绕连云港市区外围,新浦站迁建至现址人民路盐河路广场。迁址后的新浦站站房面积6000平方米,设计为火车头的造型,车站设到发线7条(含正线2条),存车线2条;有基本站台、中间站台、人行天桥和旅客地道各1座;车站徐州端有牵出线1条,综合货场1处,有货物线4条。
新浦站(90年代)
2010年1月19日,连云港站对1号主站台和3站台进行了高站台改造,使上行往徐州方向,及下行往连云港东方向,都具备了接发动车组的条件。
2015年3月20日,连云港站开始封闭施工; 同年10月15日,连云港站天桥开始拆除。
2016年4月21日,连云港综合客运主枢纽站前南广场及配套设施等工程设计项目完成设计招标工作;同年6月27日,连云港站主站房拆除完毕; 同年9月26日,连云港综合客运枢纽一期工程开工建设,工程总占地面积约为12.3万平方米,总建筑面积约为4.1万平方米; 同年10月25日,连盐铁路(青盐铁路连云港至盐城段)连云港站站房工程正式开工建设; 同年12月20日,连云港综合客运枢纽工程建设现场可视化管理平台正式启用; 同年12月30日,连云港综合客运枢纽站前南广场及配套、人民路及盐河路下穿工程主体工程开始施工。
2017年10月20日,连云港综合客运枢纽站前广场下穿隧道主体工程顺利完成; 同年11月29日,连云港站二、三站台间天桥一次吊装成功。
1998年,新浦新客站(连云港站)开通
2018年4月26日,连云港站新站房开始静态验收;同年8月21日,连云港站新站房开始动态验收; 同年8月31日,青连铁路连云港至盐城段联调联试,第一辆和谐号动车首次停靠连云港站; 同年9月8日,连云港站开出重联动车组; 同年11月16日,连云港站通过消防验收; 同年12月24日,连云港综合客运枢纽通过专家组竣工验收; 同年12月26日,连云港站、连云港综合客运枢纽一期正式投入使用, 途经连云港站的青盐铁路正式开通运营。
2019年11月20日,中国铁路上海局集团有限公司第二批电子客票应用推广工作启动,连云港站告别纸质车票,迈入电子客票时代。 同年11月22日,连云港市交通运输局就连云港站北广场综合客运枢纽规划设计方案研究项目进行公开招标采购,北广场的建设将放宽视野、体现长远,实事求是、科学系统做好项目规划设计工作,在连云港站连徐高速场北侧预留沿海高速场2台6线,将连云港站北站房面积预控为2.5万平方米,预留和满足连徐、临连、沿海高速等线路的铁路用地和客运需求。 同年11月27日,连云港“美猴王”市域列车从青岛中车四方公司首次驶入连云港站,停靠在2号站台。 同年12月16日,连镇高速铁路连淮段开通运营,连云港站开出第一趟至徐州东站的D5691次动车组。 同年12月29日,连云港站开通第一趟途经陇海铁路的青岛北至杭州的D782次动力集中式卧铺列车。 同年12月30日,连云港城市动车(连云港市域列车)项目正式开通运营,途经连云港站。
第一列停靠连云港站的和谐号动车(2018年8月31日)
2020年12月11日,连镇高速铁路全线开通运营,连云港站为该线路的始发站。连云港站连镇场8号站台开出第一趟至南京的G8315次复兴号高速动车组。
2021年2月8日,徐连高速铁路全线开通运营,连云港站为该线路的始发站。 连云港站开出至徐州东站的G8308次复兴号首发列车。 同年2月19日,《江苏省国民经济和社会发展第十四个五年规划和二〇三五年远景目标纲要》正式公布。建设徐连高速铁路连云港站综合客运枢纽项目列入枢纽经济重点工程。 同年9月30日,江苏省政府办公厅下发《江苏省“十四五”铁路发展暨中长期路网布局规划》,实施连云港站枢纽提升工程被列入江苏省“十四五”客货运枢纽(场站)重点工程。
2022年12月,连云港综合客运枢纽公务服务中心建成。
2023年1月11日,由原连云港铁道大厦改建,徐连高速铁路配套建设的行车公寓——新连云港公寓于正式投入使用。
连云港站
连云港站进站天桥实景
连云港站地下出站通道实景
连云港站站台实景
连云港站
连云港站实景
连云港站售票厅外立面实景
连云港站位于江苏省连云港市人民东路与盐河北路交汇处,距陇海铁路上行盐坨站9千米,下行包庄站14千米;距青盐铁路上行赣榆站34千米,下行海州站11千米;距徐连高速铁路上行东海县站38千米;距连镇高速铁路董集站29千米。
建筑设计
设计理念
连云港站从现代交通建筑的功能性和经济性出发,以轻盈流畅的线条体现滨海港口城市的新面貌。屋顶飘逸飞扬的姿态象征连云港经济腾飞的动力,屋身两侧渐变的线条既隐喻波浪,又契合羽翼的形态,中间的拱形线条优美流畅,使人产生“海上生明月,玲珑筑连云”的联想。
连云港站在站房设计上采取屋顶出挑、设置百叶等措施,有效减少了西晒;候车大厅室内通透明亮。
连云港站正立面
设计参数
截至2017年11月,连云港站设计最高聚集人数1390人。
截至2018年4月,连云港站主体为地上二层,局部地下二层,总建筑面积20120.6平方米, 主体高19.5米,总长150米,总宽48米。
截至2018年12月,连云港站地下停车场面积3.87万平方米(人防面积4680平方米),开挖深度6.85米。 连云港站人民路下穿隧道,全长1149米(暗埋段825米),双向四车道,设计时速50千米/小时,开挖最大深度17米。
截至2020年5月,连云港站设计年客流量650万人次。
枢纽沿街效果图
效果图
出站通道
斜视图
地下剖面图
二层内部
站台侧视图
整体布局
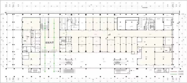
截至2017年11月,连云港站站房为线侧平式站房,属中型铁路旅客客运站,站房结构形式均为钢筋混凝土结构体系,层面为钢网架结构。
截至2018年12月,连云港站包括站房、地下停车场、隧道和站前广场四大部分。地面一层为出站及商业服务区、二层为购票、进站及候车区。站前广场为市民广场,地下一层为地下停车场,地下二层为人民路下穿隧道。
“连云港·花果山”号高铁列车首发
地面一层
连云港站地面一层为出站层及商业服务区。设计为行人步行区域,连通站前广场。乘客可乘坐公交在A、B、C3处公交车站下车,沿人行通道进入站房一层。抵达连云港站的乘客可由站房一层出站口出站,按照引导标识牌出站换乘。
地面二、三层
连云港站地面二层为送站平台、售票大厅及候车大厅。社会车辆按照“送站车辆路线图”驶入送站平台及地下停车场。
售票大厅位于连云港站二层东侧,购票方式可采取窗口购票、自助售票机购票或网上购票等。 候车大厅位于车站的二层和三层。候车厅共有候车座椅1600张,同时安装了地暖。 检票口设置6台自动检票闸机。
地下一层
连云港站地下一层为地下停车场,可以实现私家车停放与出租车载客两大功能,共设772个车位。为连云港市最大单体地下车库。 地下停车场共分六大区域,其中共设4个社会车辆停车区,分别用不同的颜色及海洋生物标明。 地下停车场也设有出租车候车区域。
地下二层
连云港站地下二层为人民路下穿隧道,为连云港市最长最深城市下穿隧道。 不进入车站的车辆可快速通过。
连云港站夜景
连云港市域铁路规划
截至2021年2月,连云港站途经铁路包含陇海铁路、青盐铁路、连镇高速铁路(反向发车线)、徐连高速铁路(含西北联络线),规划预留临连铁路(普速线)、连盐高速铁路(沿海客运专线)、临连城际铁路、连宿蚌铁路线位。
自助购票
沿海高铁(预留)引入连云港站线路别方案
电子客票
2020年6月20日起,连云港站实施电子客票。
设备设施
站房设施
车站卫生间
停车设施
连云港站地下停车场
截至2018年12月,连云港站地下停车场设有充电桩车位18个,新能源汽车充电有保障;无障碍车位18个,供特殊需要的人群上下车使用更便利。地下停车场实现免费无线网全覆盖,如忘记车辆位置,还可以通过 “自助寻车机”来查询车辆位置。 停车收费标准为前半小时免费,超过半小时按照两小时四元,全天十五元计费。
商业设施
截至2018年12月,连云港站候车厅三楼配备了快餐、超市等商旅服务区。
动车存车所
截至2020年12月,连云港站设有动车存车场,设有11条存车线,可以同时进行4列高铁动车组列车检修,保障连云港站始发和终到动车组车辆维护保养和后勤补给。
铁路公寓
截至2023年1月,连云港站设有铁路公寓,由原连云港铁道大厦改建,位于连云港火车站西侧200米,建筑面积7200平方米,主体6层设117个房间,274张床位,设有食堂、叫班室、阅览室、保健室、活动室、阳光房、消控室、乘务人员学习室等多个功能性房舍,是一个食宿洗娱功能齐全的综合性高铁行车公寓。主要负责接待来自铁路上海、济南、兰州三个局,10个客运、机务、机辆、动车段的司乘人员。日均接待260人次,叫班132趟次。
客运流量
2014年,连云港站年完成客运发送量181.87万人次。
2018年12月30日,连云港站发送动车旅客约3000人次。
2019年,连云港站年客运总量达到384.59万人,占连云港市比重达58.7%。
2021年,连云港站客运量为892.2万人次,约占连云港市铁路客运量的67%。
2023年4月27日至5月4日,五一假期期间,连云港站到发客流总量约60.5万人次,日均7.5万人次; 其中,4月28日,连云港站到发旅客9.27万人次(发送4.53万人,到站4.74万人),单日客流量创历史新高。
2023年6月21日至25日,端午假期期间,连云港站客运量约30.5万人次,其中发送旅客15.6万人次,到达旅客14.9万人次。客运总量为2019年端午假期的3倍,比2021年同期增长60%.。
2023年1月1日至7月19日,连云港站发送旅客量为379.5万人次,到达人数基本持平。
2023年7月1日至8月6日,连云港站累计发送旅客103.8万人次,日均2.8万人次,同比2022年增加66万人次,增长175%,创历史同期最高客流;
2023年7月1日至8月31日,连云港站客流量达372万人次, 其中8月23日、24日,连云港站单日发送旅客突破6万人次。
2023年1月至8月,连云港站客流量达1037万人次,迈入“千万时代”。
2023年,连云港站客运总量1496.9万人。
2024年3月15日至4月15日,连云港站发送旅客69.2万人次,同比增长27%。 4月4日至6日,连云港站客流量超18万人次,同比增长约120%。
截至2024年8月15日,高铁连云港站到发旅客总计1075万人次,比2023年提前近20天突破千万大关。
进站天桥实景
地下一层平面
一层平面
出站流线
进站流线
二层平面
公交线路
连云港站公交站点
连云港站公共交通出行信息
序号 | 公交线路 | 起点站 | 终点站 | 运营时间 | 备注 | 站台区域 |
|---|---|---|---|---|---|---|
1 | 连云港公交B1K路 | 连云港火车站 | 在海一方公园 | 06:22-23:20 | BRT | 1 |
2 | 连云港公交B11路 | 西城公交总站 | 花果山景区 | 05:50-19:40 | BRT | 1 |
3 | 连云港公交环2路 | 海州客运站 | 海州客运站 | 06:00-20:00 | BRT | 2 |
4 | 连云港公交K2路 | 连云港火车站 | 连云港火车站 | 06:00-19:00 | 接驳BRT | 2 |
5 | 连云港公交K1路 | 连云港火车站 | 板浦镇政府 | 06:00-19:00 | 接驳公交 | 4 |
6 | 连云港公交602路 | 连云港火车站 | 赣榆汽车客运站 | 05:50-18:30 | 赣榆专线 | 2 |
7 | 连云港公交602直 2018年12月起,“雷锋车”驿站位于连云港站出站口,是全国重大典型“雷锋车”组在连云港综合客运枢纽设立的志愿服务站点。“雷锋车”驿站主要服务内容是为连云港站至新浦汽车总站之间进行中转的老弱病残孕旅客提供“雷锋车”免费服务,为来连的旅客免费指路和免费导乘,为旅客提供转乘需求。驿站帮助需要转乘汽车旅客预购中短途汽车票、帮助网购旅客提前办理自助机取票服务和团队旅游包车等服务。 服务时间为每天5点50分至18点30分。 “海之缘”雷锋服务台
军人候车区
公交便民服务点
车站文化连云港属于滨海旅游城市,蕴含典型的海洋文化,为了更好的体现当地的文化特色,让建筑室内空间同外观造型统一协调。连云港站采用了铝圆管帘和铝板单相结合的波浪形吊顶形式,并采用LED蓝色轮廓灯带,勾勒吊顶造型,营造出“海浪逐沙滩”的意向,形成了极富地域特色的现代海港城市候车空间。 连云港站采撷海滨城市风情,取山之形,取水之曲,取海之蓝,采用海浪造型吊顶。优化光线射入角度,改向下直射为平射,LED蓝色曲线灯带如浪花起伏,营造出海天一色、如梦似幻的空间氛围。 连云港站“海浪造型”吊顶站前广场(北广场) 连云港站综合客运枢纽规划建设南、北两个广场,先期的南广场可停车1630辆,远期建设的北广场可停车2250辆,共计3880辆。远期建设的北广场主要功能为公交、长途、出租(地下)、社会车辆(地下)、酒店及配套商业等。 规划旅客流量为2020年,旅客发送量为339万人次/年,高峰小时旅客发送量1300人次/小时。2030年,旅客发送量为677万人次/年,高峰小时旅客发送量2630人次/小时。
南广场主要服务海州主城区和近期需求,铁路站房2万平米、地下车场3.87万平米,于2018年12月与青盐铁路同步建成使用。规划待建的北广场综合客运枢纽定位为未来主广场,其中高铁站房拟按2.5万平米预控,北广场规划建设成为集铁路客运、公路客运、城乡客运、城市公交、轨道交通、航空候机、出租车和社会车辆等多种交通方式于一体的“零换乘”综合交通枢纽。按照连云港市人民政府工作安排,北广场的建设将放宽视野、体现长远,实事求是、科学系统做好项目规划设计工作。 连云港站将建成集铁路客运、公路客运、城乡客运、城市公交、BRT、轨道交通、航空候机、海运候船、出租车和社会车辆等多种交通方式于一体的“零换乘”综合交通枢纽。
站房站场 原中国国家铁路总公司、江苏省人民政府联合批复的徐连高速铁路初步设计方案中,明确要求连云港站预留连云港至临沂城际铁路线位,在连云港站徐连高速场北侧预留沿海高速场2台6线,将连云港站北站房面积预控为2.5万平方米,预留和满足徐连、临连、沿海高速等线路的铁路用地和客运需求。 轨道交通
1、本站所有文本、信息、视频文件等,仅代表本站观点或作者本人观点,请网友谨慎参考使用。 词条信息
|

“海之缘”雷锋服务台
连云港站军人候车区
连云港站公交便民服务点
区域功能分区图
项目区位示意图
区域意向总平面图
总平面图
连云港站北广场高架匝道方案
连云港站北广场大平台方案
公共交通系统规划图
连云港地区途经铁路
















